3-к. квартира, 73.2 м²
Продажа квартир на любой вкус и бюджет
Продаётся просторная трёхкомнатная квартира с превосходным дизайнерским ремонтом, выполненным специально для комфортного проживания своей семьи!

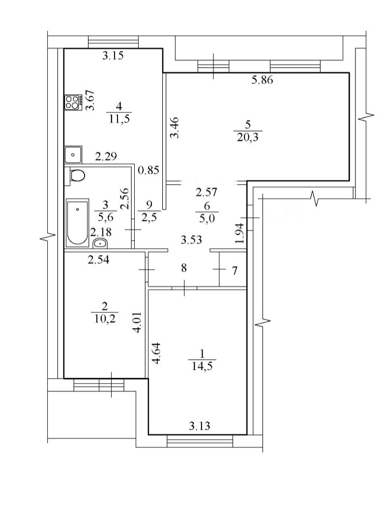
Удобная планировка позволяет рационально распределить пространство между зонами отдыха, работы и приёма гостей, а так же оборудовать отдельное пространство для гардеробной.

Санузел оборудован современной сантехникой и отделкой премиум-класса.

Видовая лоджия открывает живописный обзор окрестностей, создавая ощущение простора и свободы.

Идеально подойдёт ценителям качественного жилья, стремящимся жить в уютной атмосфере комфорта и стиля. Прекрасный выбор для тех, кто мечтает о доме мечты!

Немного деталей:
* ремонт был выполнен в 2021 году
* полы - цементная стяжка с шумоизоляцией
* Разводка электрики в потолке, усиленным сечением проводов ВВГнг-LS, с диф. автоматоматами на каждую силовую группу бытовых приборов и с общей защитой от перенапряжения, коробки загерметезированы от попадания влаги и пыли
* Двери ProfilDoors с алюминиевым бампером, и ручками Oro&Oro, петли скрытые
* Стены выровнены под шлифовальную машину для лучшего эффекта
* Лоджия утеплялась жб стяжкой в 3 слоя утепления, остекление утеплено аргоновым наполнением

Звоните прямо сейчас! Показ квартиры возможен в удобное для вас время.
Ссылка на объявление: https://dvor29.com/sale/saleapartments/172183
11 200 000
Ольга


Архангельская область, Архангельск, улица Советская, д 11 redeemДанный объект можно приобрести в ипотеку

Информация об объекте

Количество комнат3-к квартира Этаж9 Площадь73.2 Жилая площадь45 Площадь кухни11.5 Площадь комнат20,3; 14,5; 10,2 Лоджия1 Балкон1 Совмещенных санузлов1 ОкнаДвор + улица РемонтЕвро

Информация о доме

Год постройки1992 Тип домаПанельный Этажей в доме10 Лифты пассажирские1 Серия дома95 Высота потолков2.7 ПарковкаНаземная