3-к. квартира, 58.8 м²
Продажа квартир на любой вкус и бюджет
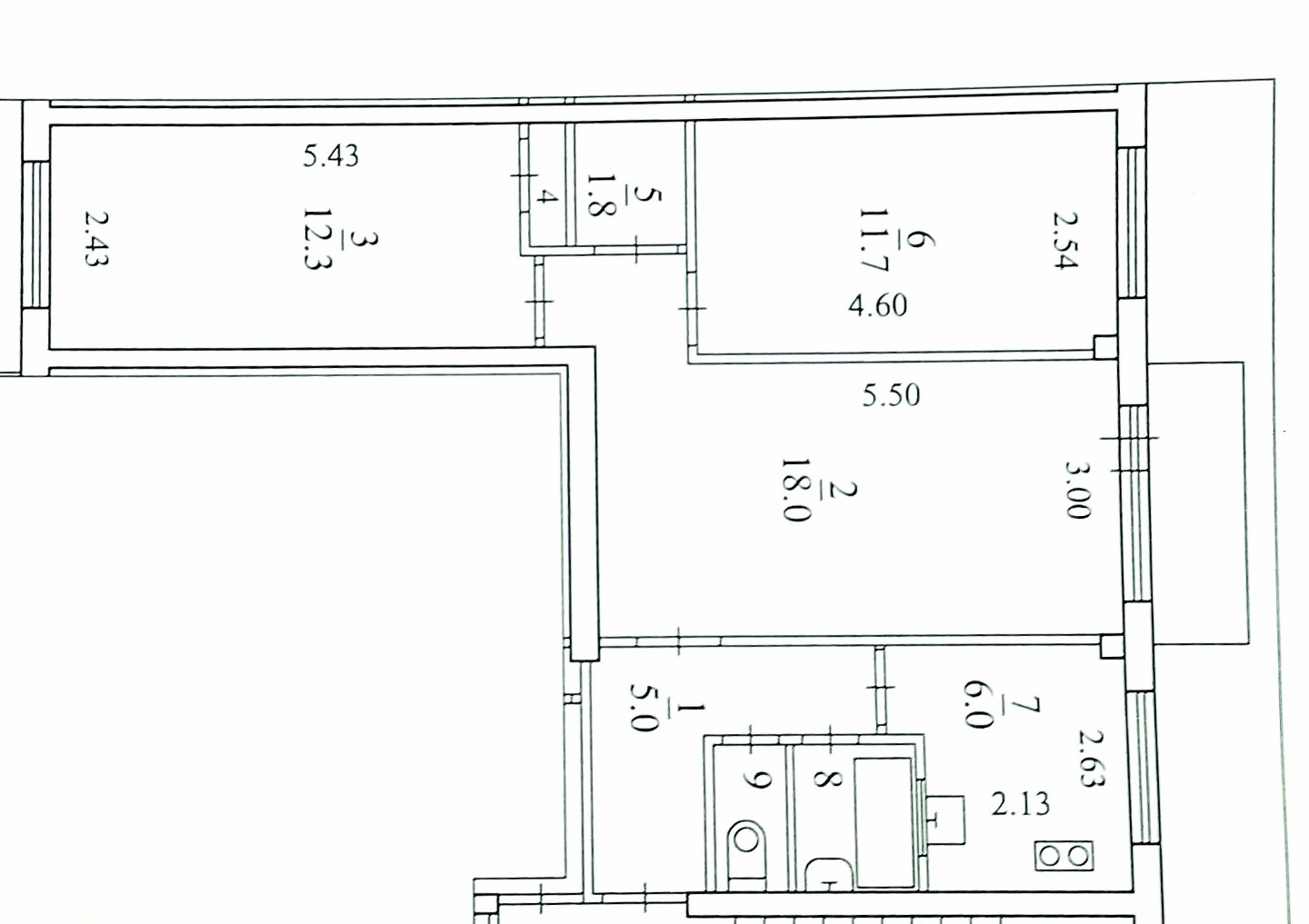
Продается трехкомнатная квартира с гардеробной!

• Планировка: одна из комнат проходная, но благодаря достаточной площади ее можно легко изолировать, раздельный санузел, вместительная гардеробная.
• Улучшения: все окна заменены на новые стеклопакеты, выполнен косметический ремонт, установлены счетчики на воду. Также была проведена замена разводки труб и водопроводных стояков.
• Окна на разные стороны: это обеспечит хорошее освещение и свежий воздух.

С обеих сторон дома находятся дворовые территории с детской площадкой, что делает это место идеальным для семей с детьми. Вокруг тихо, нет потока машин под окнами. Соседи приветливые.

Подъезд недавно отремонтирован — здесь всегда чисто и уютно.

Отличная локация: квартира находится в безопасном районе с развитой инфраструктурой. В шаговой доступности расположены:
• Школа №11
• Детский сад «Парусок»
• Несколько продовольственных магазинов
• Вологодские бани
• Спорткомплекс «Норд Арена»
• Остановка автобусов всего в паре минут ходьбы

Квартира освобождена и готова к продаже. Один совершеннолетний собственник. Все документы проверены. Ключи — в день сделки.

Звоните для организации просмотра!
Ссылка на объявление: https://dvor29.com/sale/saleapartments/176083
4 900 000
Анна Едемская


Архангельская область, Архангельск, улица Вологодская, д 38
redeemДанный объект можно приобрести в ипотеку

Информация об объекте

Количество комнат3-к квартира Этаж5 Площадь58.8 Жилая площадь42 Площадь кухни6 Площадь комнат18,0 12,3 11,7 Балкон1 Раздельных санузлов1 ОкнаДвор РемонтКосметический

Информация о доме

Год постройки1970 Тип домаПанельный Этажей в доме5 Серия домаБрежневка Высота потолков2.5 ПарковкаНаземная