3 комнатная квартира 93 серии
Продажа квартир на любой вкус и бюджет
Без альтернативной покупки! С обсуждаемой,хорошей скидкой! Продается трехкомнатная квартира 93 серии !
Квартира в обычном состоянии , для тех , кто хочет осуществить ремонт, на свой вкус и цветовую гамму.
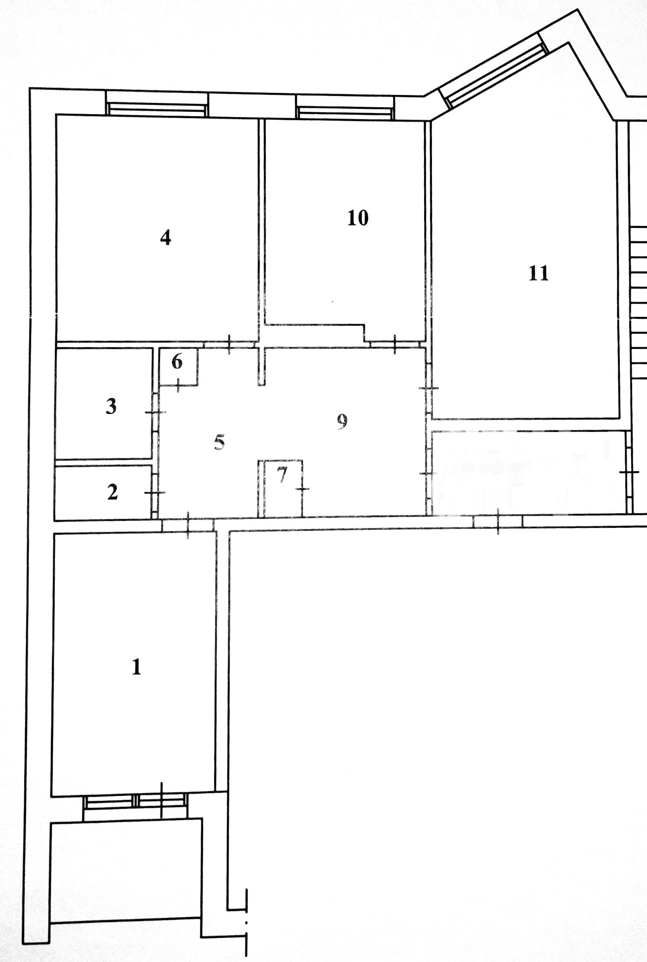
Комнаты раздельные , сан узел раздельный,лоджия.
Комфортный четвертый этаж.
Хорошая инфраструктура района.
Без долгов, без обременений !
В свою очередь можем Вам предложить , быстрый выход на регистрацию.
Ссылка на объявление: https://dvor29.com/sale/saleapartments/180123
5 300 000
Олег


Архангельская область, Архангельск, улица Калинина, д 21
redeemДанный объект можно приобрести в ипотеку

Информация об объекте

Количество комнат3-к квартира Этаж4 Площадь61.9 Жилая площадь38.6 Площадь кухни8.9 Площадь комнат17.3+11.1+10.2 Лоджия1 Раздельных санузлов1 ОкнаДвор + улица РемонтОтсутствует

Информация о доме

Год постройки1987 Тип домаПанельный Этажей в доме9 Лифты пассажирские1 Серия дома93 серия Высота потолков2.7 МусоропроводЕсть ПарковкаНаземная