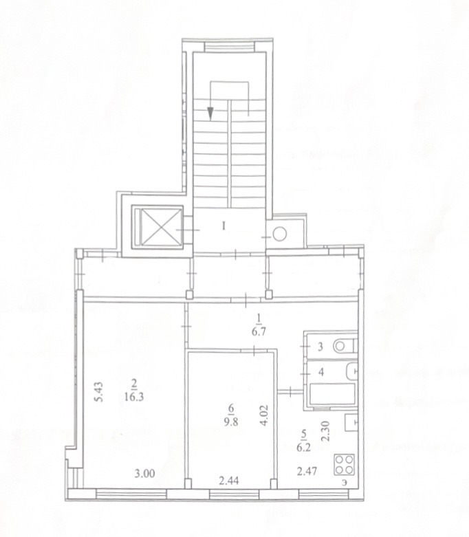
2-к. квартира, 42.3 м²
Продажа квартир на любой вкус и бюджет
Предлагаем приобрести 2-х комнатную квартиру.
Дом Ульяновской серии 1973 года постройки.
В доме заменены коммуникации, установлен теплосчетчик, кровля отремонтирована ,установлены новые кабины лифта, мусоропроводы заварены, создана группа в вк для обсуждения всех вопросов, подъезды отремонтированы.
Квартира ао состоянию чистая и аккуратная:
+ установлены стеклопакеты
+ напольное покрытие в комнатах ковролин, в коридоре и на кухне - ламинат
+ в квартире электроплиты
+ остается кухонный гарнитур, варочная панель, вытяжка и стенка в большой комнате
Квартира очень теплая.
Балкона нет
Звоните и приходите на просмотр.
Ссылка на объявление: https://dvor29.com/sale/saleapartments/182212
3 800 000
Ольга


Архангельская область, Архангельск, улица Воронина В.И., д 25
redeemДанный объект можно приобрести в ипотеку

Информация об объекте

Количество комнат2-к квартира Этаж9 Площадь42.3 Жилая площадь26.1 Площадь кухни6.2 Площадь комнат16,3;9,8 Раздельных санузлов1 ОкнаУлица РемонтКосметический

Информация о доме

Год постройки1973 Тип домаПанельный Этажей в доме9 Лифты пассажирские1 Высота потолков2.5 ПандусЕсть ПарковкаНаземная