Продажа коммерческой недвижимости, 366.9 м²
Помещения для бизнеса в удобных локациях
В продаже здание площадью 366,9м2
Площадь земельного участка 9 сот
Здание использовалось ,как медицинский центр с стaбильными финанcoвыми показатeлями.
Мы предлагаем купить ,как готовый бизнес со всей необходимой медицинской техникой . Специализация: Гинекология , Стоматология.
Все готово для открытия лицензии.

Так же готовы к продаже здания без оборудования под Ваши цели.

Первый этаж :
6 кабинетов
2 санузла

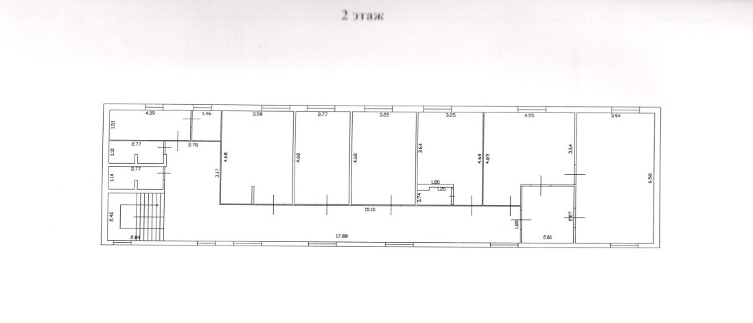
Второй этаж:
6 кабинетов
2 санузла
Бойлерная комната
Сервисная комната

Третий этаж :
Свободная площадь ~100 м2
Есть выводы под коммуникации

Коммуникации :
Центральное водоподведение
Центральное водоотведение
Центральная газификация
Центральное электричество 70кВТ

Идеальное расположение: объект находится в удобном месте с хорошей транспортной доступностью и развитой инфраструктурой, что обеспечит приток пациентов и комфорт сотрудников.

По запросу можем выслать видео.

Так же к медицинской клинике за отдельную стоимость есть просторный ,новый , жилой дом для сотрудников или для личного проживания ,все условия обговариваются по телефону или личной встрече.

Звоните! Расскажем и покажем в удобное для Вас время!



Ссылка на объявление: https://dvor29.com/sale/salecommercial/8041
24 000 000
Екатерина Черная


Архангельская область, Плесецкий район, рабочий поселок Плесецк, улица Вокзальная, д 1Б

Информация по объекту

Площадь366.9 Этаж1 Этажей в доме3 Высота потолков2.8 ПланировкаКабинетная Кол-во мокрых точек3 Электрическая мощность70 СостояниеТиповой ремонт МебельЕсть ДоступСвободный ПарковкаНаземная НалогНДС включен

Информация по зданию

Название БЦМедицинский центр Тип строенияОбъект свободного назначения Класс зданияA Площадь здания366,9 Участок9 КатегорияДействующее ВентиляцияПриточная КондиционированиеМестное ОтоплениеАвтономное Система пожаротушенияСигнализация

Инфраструктура


check Автомойкаcheck Буфетcheck Автосервисcheck Столоваяcheck Гостиницаcheck Банкомат check Аптекаcheck Отделение банкаcheck Медицинский центрcheck Салон красотыcheck Нотариальная контора check Складские помещенияcheck Супермаркетcheck Минимаркет check Торговая зона